ID CP2671411
Vila 3 camere Pipera I constructie 2025
Această proprietate nu mai este activă,
te invităm să vizualizezi proprietăți similare
ID CP2671411
269,000 €
Va ofer spre vanzare vila noua 3 camere in Pipera, intr-o zona exclusiv rezidentiala, linistita si selecta., ideala pentru familie care dorește o locuință nouă, cu costuri de întreținere reduse, dar cu tot confortul necesar.
Vila se vinde cu obiectele sanitare incluse in pret - acestea putand fi alese de viitorul cumparator!
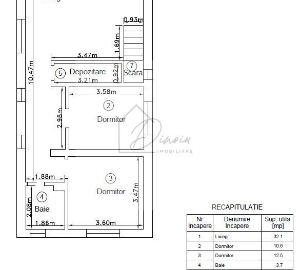
Vila este cosnstruita P+M, pe un teren cu suprafata totala de 216 mp , cu suprafata utila totala de 103 mp, cu o compartimentare inteligenta a spatiilor dupa cum urmeaza:
PARTER: suprafata utila de 67 mp
- hol intrare
- living generos si luminos de 32 mp
- bucatarie inchisa
- 1 dormitor de 12,5 mp
- baie de 4mp, cu fereastra - ideal pentru aerisire naturala
- camera tehnica de 3 mp
MANSARDA: suprafata utila de 36 mp
- camera de 21 mp
- dressing de 5,4 mp
- baie spatioasa de 7 mp, cu fereastra - ideal pentru aerisire naturala
CURTE: pavată cu terasă acoperita, gazon, pomi fructiferi și o poartă de acces auto automatizată
Vila dispune de toate utilitățile: gaz, electricitate, canalizare si apă curentă.
Va invit sa programati o vizionare!
Alina Dinoiu