ID CP2796586

Spațiu comercial I Showroom | Birou I Pipera Iancu Nicolae I Stradal

ID CP2796586

5,950 € (negociabil) + 21% TVA

Spațiu comercial de închiriat
Nord, Voluntari
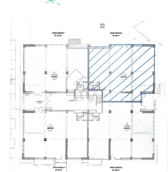
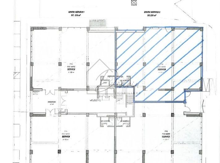
238 mp
2025

Va ofer spre inchiriere un spatiu comercial premium de 238 mp de inchiriat - cu flexibilitate la compartimentare, situat la parterul unui bloc din Complexul Premium Residence 5 Forest Apartments, in Pipera - Voluntari, pe Sos Pipera, langa Padurea Baneasa, langa Erou Iancu Nicolae, aproape de toate institutiile private de invatamant de elita, , intr-o zona rezidentiala selecta si exclusivista, cu accesibilitate foarte buna catre toate zonele din Pipera, Baneasa, Tunari, Otopeni, etc. Zona are un trafic pietonal insemnat, oferind astfel premisele pentru lansarea si derularea unei afaceri.

Ideal pentru:

- birouri & sediu firma

- cafenea

- showroom

- clinica medicala (medicina generala, stomatologie, dermatologie, pediatrie, cardio, oftalmologie, etc)

- beauty salon & barber shop

- centru educational (cursuri IT, limbi straine, etc) sau sportiv

- atelier creatie / croitorie

- cabinet veterinar

Spatiul beneficiaza de 2 intrari, una fiind de pe B-dul Pipera; 2 grupuri sanitare dispoinibile.

Spațiul poate fi compartimentat in functie de specificul activităților desfășurate.

Conditii inchiriere: contract minim 5 ani

- pret chirie lunar 25 euro/mp + TVA 21%

- suprafata utila de 238 mp

Facilitati si avantaje:

- vitrine mari - vizibilitate excelentă din bulevard

- spatiul este situat pe B-dul Pipera, la parter, stradal, central in complex, cu pereti de sticla - vitrine

- se poate compartimenta in functie de nevoile d-stra; dispoinibilitate imediata pentru amenajare

- mijloace de transport disponibile chiar in fata complexului: STV (459, 449) si STB (301)

Facilitati locatie:

- locatie excelenta, aproape de natură și accesibilitate

- proximitatea pădurii Băneasa – o oază de relaxare cu aer curat, potrivită pentru plimbări și activități recreative

- acces rapid la școlile private de top: British School of Bucharest (BSB), Școala Internațională Hermann Oberth, Mark Twain International School, Școala Americană Internațională din București (AISB), Școala Olga Gudynn International, etc

- activități recreative – aproape de grădina zoologică, piscine moderne și centre wellness, pentru o viață echilibrată,

- conectivitate excelentă cu zona de business Pipera, DNCB și Aeroportul Otopeni.

Va invit sa ma contactati pentru mai multe detalii sau pentru a programata o vizionare!

Alina Dinoiu

Citește mai mult

  • Tip imobil
    Bloc de apart.
  • Trafic pietonal
    Moderat
  • Etaj
    Parter
  • Număr camere
    1
  • Număr băi
    2
  • Suprafață construită
    250 mp
  • Suprafață utilă
    238 mp
  • Disponibilitate
    Imediat
  • An construcție
    2025
  • Construcție nouă
    Da
  • Număr etaje clădire
    4
  • Număr etaje retrase
    1

Facilități

Acces pentru persoane cu dizabilități
Apă
Canalizare
Centrală termică
Contorizare separată
Curent
Echipamente moderne / silențioase
Fațadă ventilată
Gaz
Grupuri sanitare amenajate și utilate
Irigații
Sistem de ventilație
Sistem inteligent ascensoare
Alina Dinoiu - DINOIU IMOBILIARE
Alina Dinoiu
Managing Director

0765622276


Solicită chiar acum o vizionare
Nume
Telefon
Email
Sună acum Solicită vizionare
Necesare:

Site-ul nu poate funcționa corect fără aceste cookie-uri. Vezi cookie-urile

Statistică:

Strângem statistici anonime despre voi, vizitatorii unici, pentru a vă îmbunătăți experiența dumneavoastră. Vezi cookie-urile

Marketing:

Pentru a ne promova mai eficient serviciile noastre, folosim cookies pentru a vă identifica și a vă oferi proprietăți și servicii personalizate. Vezi cookie-urile

Acest site folosește cookies, află detalii. Alege ce tipuri de cookies dorești să permitem: