ID CP2980261

Spatiu Birouri Ion MIhalache - Turda I 249 mp I

ID CP2980261

3,500 €

Spațiu de birouri de închiriat
Turda, Bucuresti
249 mp
2022

Va ofer spre inchiriere vila premium pentru spatii birouri de 249 mp, cu compartimentare existenta, situata langa intersectia B-dul Ion Mihalache cu Turda, in sectorul 1, intr-o locatie excelenta din Bucuresti, cu accesibilitate foarte buna catre toate zonele centrale ale orasului si punctele importante din Bucuresti. Zona are un trafic pietonal insemnat si mijloace de transport foarte aproape.

Ideal pentru:

- birouri & sediu firma (avocatura, contabilitate, arhitectura, audit, etc)

- centru educational (cursuri IT, limbi straine, etc)

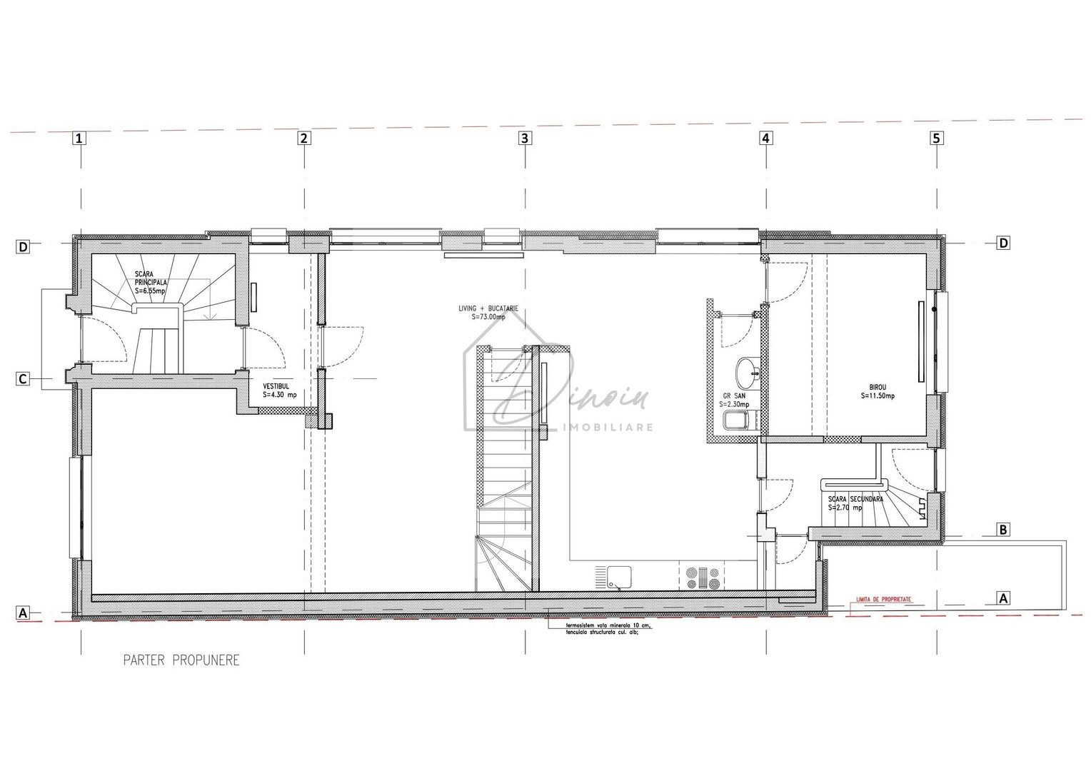
Vila are suprafata utila de 249 mp plus teresa de 13 mp + curte generoasa. Vila este construita pe demisol inalt + parter + mansarda, fiind compusa din 2 spatii diferite delimitate (un apartamnet la demisol si 1 apartament la parter si etaj), dupa cum urmeaza:

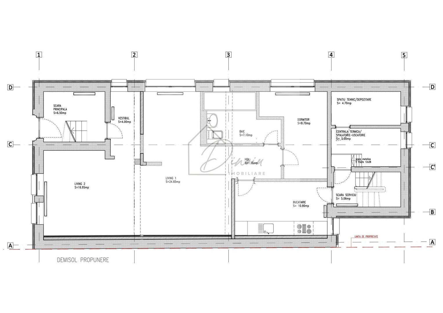
DEMISOL - un spatiu de 91 mp utili, cu 1 baie si 1 bucatarie

PARTER - suprafata utila de 91 mp, cu 1 bucatarie si 1 baie

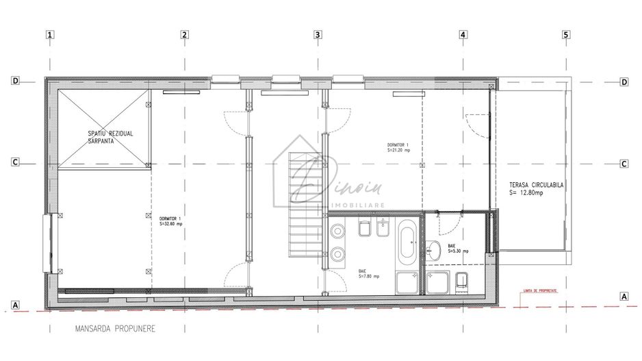
MANSARDA: suprafata utila de 67 mp, cu 2 bai

Curtea

Detalii financiare: contract inchiriere; pret chirie = 3.500 euro/mp

Facilitati locatie:

- locatie centrala excelenta, aproape mijloace de transport

- conectivitate excelentă cu toate punctele importante din Bucuresti

Va invit sa ma contactati pentru mai multe detalii sau pentru a programata o vizionare!

Alina Dinoiu

Citește mai mult

  • Tip imobil
    Casă / Vilă
  • Etaj
    Demisol, Parter, Mansarda
  • Număr camere
    7
  • Număr băi
    4
  • Număr terase
    1
  • Suprafață utilă
    249 mp
  • Disponibilitate
    Imediat
  • Suprafață totală birouri
    249 mp
  • Compartimentare spațiu
    Parțial compartimentat
  • An construcție
    2022
  • Construcție nouă
    Da
  • Număr etaje clădire
    1
  • Are demisol
    Da
  • Are mansardă
    Da

Facilități

Afișare logo pe clădire
Aport de aer proaspăt
CCTV
Centrală termică
Contorizare separată
Control electric individual pe zona de birou
Control individual AC pentru fiecare zonă de birou
Ferestre care se deschid
Gresie
Grupuri sanitare amenajate și utilate
Internet
Parchet
Posibilitatea alegerii operator date / telefonie
Salubritate
Telefon
Vedere spre oraș
Alina Dinoiu - DINOIU IMOBILIARE
Alina Dinoiu
Managing Director

0765622276


Solicită chiar acum o vizionare
Nume
Telefon
Email
Sună acum Solicită vizionare
Necesare:

Site-ul nu poate funcționa corect fără aceste cookie-uri. Vezi cookie-urile

Statistică:

Strângem statistici anonime despre voi, vizitatorii unici, pentru a vă îmbunătăți experiența dumneavoastră. Vezi cookie-urile

Marketing:

Pentru a ne promova mai eficient serviciile noastre, folosim cookies pentru a vă identifica și a vă oferi proprietăți și servicii personalizate. Vezi cookie-urile

Acest site folosește cookies, află detalii. Alege ce tipuri de cookies dorești să permitem: