ID CP2671356

COM 0% I Apartament 2 camere Rond OMV Pipera I SU 65mp I Ocazie

ID CP2671356

172,500 €

Apartament cu 2 camere de vânzare
Central, Voluntari
65 mp
2024

Va ofer spre vanzare apartament 2 camere, situat in Pipera, vis-a-vis de rondul OMV, in Nordul Bucurestiului, intr-o zona linistita, intr-o comunitate selecta si moderna, intr-o locatie care ofera toate facilitatile pentru o viata confortabila si activa.

Disponibilitate imediata! Confortul urban într-un apartament modern! Ideal locuinta / investitie!

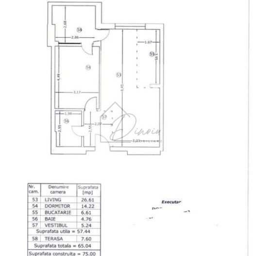
Apartamentul este situat la etajul 7/8, cu orientare catre vest - cu lumina naturala toata ziua, cu vedere panoramica spectaculoasa, cu suprafata utila totala de 65 mp (57,44 mp plus terasa de 7,6 mp), cu o compartimentare inteligenta a spatiilor, dupa cum urmeaza:

- hol intrare de 5 mp, cu dressing generos pe un perete intreg

- living spatios de 27 mp, cu zona de relaxare, canapea si TV; aer conditionat; acces catre terasa

- bucatarie open-space de 7 mp, complet utilata (electrocasnice de top de la Samsung și Bosch); cu zona de dining

- dormitor spatios de 14 mp, cu pat matrimonial; acces catre terasa

- baie spatioasa de 4,7 mp

- terasă spațioasă de 8 mp cu vedere panoramică liberă spre apus; acces din ambele camere

- loc de parcare subteran disponibil la un cost suplimentar

Dotari si finisaje apartament: premium

- complet mobilat cu mobilier modern din MDF, realizat la comandă; spații de depozitare optimizate inteligent

- suprafete vitrate mari

Facilitati bloc:

- 2 lifturi moderne; supraveghere video; interfon

Facilitati locatie: Pipera - Rond OMV

Avantaje locatie:

- transport: 4 min pana la statiile STV Autobuze: 343 (STB),416, 449, 450, 459, 488

- 2 statii de metrou: Pipera si Aurel Vlaicu

- educatie: gradinite, scoli, licee de stat si private

- shopping: Pipera Plaza (Lidl, JYsk, DR Max, Catena, Sportissimo, restaurante, cafenele, curatatorie haine, spalatorie auto, barber shop), Peny, Kaufland, Mega Image, Lemon Retail Park, Promenada Mall, Baneasa Shopping City

- business: Cubic Center, Swan Office Park, Global City, Iride, PIpera BUsiness Tower, Oregon Park, zona de birouri Pipera, Barbu Vacarescu, Aurel Vlaicu, Floreasca

- relaxare: World Class Planet cu bazin semiolimpic, FIt9,

- acces rapid A3, Centura Bucuresti si A0

- acces rapid aeroporturi Baneasa si Otopeni

Va invit sa programati o vizionare!

Alina Dinoiu

Citește mai mult

  • Tip apartament
    Apartament
  • Compartimentare
    Semidecomandat
  • Număr camere
    2
  • Dormitoare
    1
  • Număr bucătării
    1
  • Număr băi
    1
  • Etaj
    7
  • Suprafață utilă
    65 mp
  • Suprafață construită
    75 mp
  • Suprafață totală
    65 mp
  • Suprafață terasă
    7.6 mp
  • Disponibilitate
    Imediat
  • Orientare
    Vest
  • Confort
    Lux
  • Stare interior
    Ultrafinisat
  • Număr terase
    1
  • Număr locuri parcare
    1
  • Imobil
    Bloc de apart.
  • Stadiu construcție
    Finalizată
  • An construcție
    2024
  • Construcție nouă
    Da
  • Tip construcție
    Beton
  • Număr etaje clădire
    8

Facilități

Acces pentru persoane cu dizabilități
Aer condiționat
Apă
Apometre
Aragaz
Bucătărie deschisă
Bucătărie mobilată
Bucătărie parțial utilată
Cadă
Canalizare
CATV
Centrală proprie
Contor căldură
Contor electric
Contor gaz
Curent
Dressing
Faianță
Ferestre aluminiu
Frigider
Gaz
Geamuri tripan
Gresie
Hotă
Iluminat stradal
Încălzire prin pardoseală
Interfon
Izolație exterioară
Izolație interioară
Lift
Mașină de spălat rufe
Mașină de spălat vase
Mijloace de transport în comun
Mobilat complet
Mobilat lux
Parchet
Străzi asfaltate
Supraveghere video
TV
Ușă intrare metal
Uși interior lemn
Vedere panoramică
Vopsea lavabilă
Alina Dinoiu - DINOIU IMOBILIARE
Alina Dinoiu
Manager Agentie

0765622276


Solicită chiar acum o vizionare
Nume
Telefon
Email
Sună acum Solicită vizionare
Necesare:

Site-ul nu poate funcționa corect fără aceste cookie-uri. Vezi cookie-urile

Statistică:

Strângem statistici anonime despre voi, vizitatorii unici, pentru a vă îmbunătăți experiența dumneavoastră. Vezi cookie-urile

Marketing:

Pentru a ne promova mai eficient serviciile noastre, folosim cookies pentru a vă identifica și a vă oferi proprietăți și servicii personalizate. Vezi cookie-urile

Acest site folosește cookies, află detalii. Alege ce tipuri de cookies dorești să permitem: