ID CP2957383

2 CAMERE COSMOPOLIS I GATA DE MUTARE I PARCARE INCLUSA I PROPRIETAR

ID CP2957383

100,000 €

Apartament cu 2 camere de vânzare
Stefanestii de Jos
51 mp
2025

Va ofer spre vanzare apartment cu 2 camere + loc parcare, cu vedere spectaculoasa catre piscina, situat in Complexul Rezidential COSMOPOLIS, in Stefanestii de Jos, langa Tunari, cu acces din Sos. de Centura, in zona de Nord a Bucurestiului.

Disponibilitate imediata! Gata de mutare! DIRECT PROPRIETAR! COMISION agentie= 0%

Pret achizitie persoana juridica: 100.000 euro cu taxare inversa, PARCARE INCLUSA

Pret achizitie persoana fizica: 100.000 euro + tva 21%, PARCARE INCLUSA

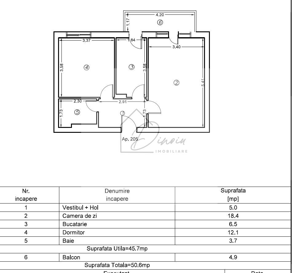
Apartamentul este decomandat, situat la etajul 2/7 intr-un bloc nou construit in 2026, cu suprafata utila de 51 mp (46 mp plus balcon de 5mp), foarte luminos, cu vedere panoramica spectaculoasa catre piscina, cu o compartimentare moderna si eficienta a spatiilor, dupa cum urmeaza:

- hol intrare de 5 mp

- living foarte luminos de 18,4 mp, cu acces pe balcon - vedere spectaculoasa catre piscina mare

- bucatarie inchisa de 6,5 m cu acces catre balcon

- dormitor generos de 12 mp

- baie spatioasa de 3, 7 mp

- loc de parcare dispoinibil in fata blocului

Dotari si finisaje apartament:

- videointerfon

- incălzire prin pardoseala; centrală proprie - în condensație

- uși interioare din lemn; ușă metalica la intrare

- ferestre cu geam termopan

-racord mașină spălat

- contracte utilități la furnizori; TV & Internet - fibră optică

-parchet, gresie și faianță; obiecte sanitare

Avantaje Complex Cosmopolis: orasul numit acasa : 16.000 locuitori

- siguranța rezidenților; pază 24/24 - acces controlat; supraveghere Video

- costuri scăzute de întreținere

- multiple opțiuni de relaxare; grad scăzut de poluare

Facilitati Complex Cosmopolis: birou impozite și taxe locale

Optiuni relaxare

- 65 piscine exterioare; 4 parcuri; terenuri de fotbal și tenis; plajă privată pe malul lacului natural din apropiere

- sală de fitness; fitness în aer liber; WorldClass (sauna umeda, uscata + piscina interioara)

Pentru copii: 4 locuri de joacă

Unitati de invatamant si educationale: scoală primară privată: Mark Twain International School = 2 gradinite private; scoala de stat in curand; scoală de talente

Transport: asigurat pe baza de abonament

Magazine: Carrefour Market, Lidl, Jysk, etc - peste 70 de magazine

STRIP MALL Cosmopolis Plaza: restaurante și cafenele

Spații servicii: Saloane cosmetice, Farmacie, Veterinar, Curățătorie, ATM, Centru medical Affidea Cosmopolis

Biserică ortodoxă; Moschee

Service Auto (ITP + Vulcanizare)

Spalatorie Auto (in curand)

Facilitati locatie:

- acces facil la zona din Pipera

- acces rapid A3, A0 si centura Bucuresti, DN1

Va invit sa programati o vizionare! Alina Dinoiu

Pentru mai multe detalii, va astept aici dinoiuimobiliare.ro

Citește mai mult

  • Tip apartament
    Apartament
  • Compartimentare
    Decomandat
  • Număr camere
    2
  • Dormitoare
    1
  • Număr bucătării
    1
  • Număr băi
    1
  • Etaj
    2
  • Suprafață utilă
    51 mp
  • Suprafață totală
    51 mp
  • Disponibilitate
    Imediat
  • Confort
    Lux
  • Stare interior
    Ultrafinisat
  • Anul finisării
    2026
  • Număr balcoane
    1
  • Număr locuri parcare
    1
  • Imobil
    Bloc de apart.
  • Stadiu construcție
    Finalizată
  • An construcție
    2025
  • Construcție nouă
    Da
  • Tip construcție
    Beton
  • Număr etaje clădire
    7

Facilități

Acces pentru persoane cu dizabilități
Apă
Apometre
Bucătărie închisă
Cabină de duș
Canalizare
CATV
Centrală proprie
Contor căldură
Contor electric
Contor gaz
Curent
Curte comună
Facilități sportive
Faianță
Ferestre care se deschid
Ferestre PVC
Fitness
Gaz
Geamuri cu izolație fonică
Geamuri termopan
Geamuri tripan
Gresie
Iluminat stradal
Încălzire prin pardoseală
Interfon
Internet
Izolație exterioară
Izolație interioară
Lift
Loc de joacă copii
Mijloace de transport în comun
Nemobilat
Parcare biciclete
Parcare deschisă
Parchet
Pază
Pază permanentă
Piscină exterioară
Piscină interioară
Piscină privată
Spa
Spălătorie
Spații agrement
Străzi asfaltate
Supraveghere video
Telecomandă poartă acces auto
Telefon
Ușă intrare metal
Uși interior lemn
Vedere panoramică
Videointerfon
Vopsea lavabilă
Alina Dinoiu - DINOIU IMOBILIARE
Alina Dinoiu
Managing Director

0765622276


Solicită chiar acum o vizionare
Nume
Telefon
Email
Sună acum Solicită vizionare
Necesare:

Site-ul nu poate funcționa corect fără aceste cookie-uri. Vezi cookie-urile

Statistică:

Strângem statistici anonime despre voi, vizitatorii unici, pentru a vă îmbunătăți experiența dumneavoastră. Vezi cookie-urile

Marketing:

Pentru a ne promova mai eficient serviciile noastre, folosim cookies pentru a vă identifica și a vă oferi proprietăți și servicii personalizate. Vezi cookie-urile

Acest site folosește cookies, află detalii. Alege ce tipuri de cookies dorești să permitem: