ID CP2786065

COMISION 0% I Vila de vanzare Pipera - Emil Racovita I Jasmine Garden

Această proprietate nu mai este activă,
te invităm să vizualizezi proprietăți similare

ID CP2786065

241,888 € (negociabil)

Casă / Vilă cu 3 camere de vânzare
Central, Voluntari
103 mp
2016

Va ofer spre vanzare vila insiruita, cu 3 camere si 3 bai in Pipera, pe str. Emil Racovita, intr-o zona linistita, intr-un ansabu rezidential modern si intim, intr-o comunitate exclusivistă cu spații verzi, spatii de relaxare, spatiu de plimbare, loc de joacă și piscină privată pentru rezidenți.

Disponibilitate imediata! Se vinde mobilata precum in poze si utilata complet cu electrocasnice!

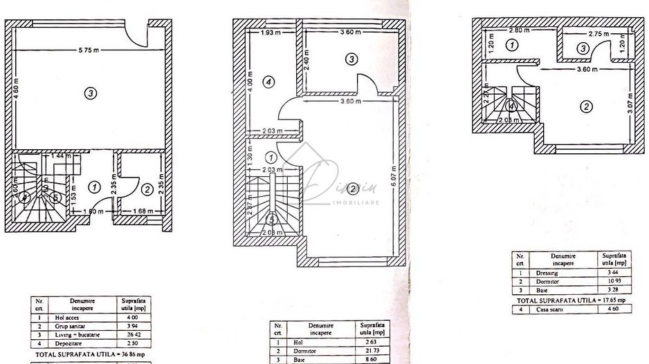
Vila este construita pe P+2E, cu suprafata utila de 103 mp, cu co compartimentare moderna si eficienta a spatiilor, dupa cum urmeaza:

PARTER - suprafata utila de 40 mp: hol, living spațios cu acces la terasă și grădină, bucătărie modernă, baie si incapere de depozitare

ETAJ 1 - suprafata utila de 41 mp: dormitor matrimonial + dressing generos și baie dubla (etajul 1 se poate recompartimenta în 2 dormitoare + baie)

ETAJ 2 - suprafata utila de 22 mp: un dormitor luminos, dressing, baie proprie si incapere generoasa de depozitare

CURTE- cu gradina privată + terasă – perfecte pentru relaxare și timp în aer liber

PARCARE: 2 locuri de parcare incluse in pret

Facilitati complex rezidential:

- ansamblu securizat, comunitate liniștită și prietenoasă

- piscina privata

- loc de joaca

- spatii de relaxare si joc pentru adulti (foisor, tenis de masa etc)

Facilitati locatie:

- mijloace de transport STV

- acces rapid A3/A0 si centura Bucuresti

- acces rapid Rond OMV si zona de birouri din Nord

- langa Parcul Regina Ana, terenuri de fotbal si baschet

- aproape de Scoala nr 3 Pipera

- aproape de magazine: Lidl si Lemon Park (Mega Image, restaurante, cafeneele, spalatorie auto, farmacie, DM, Intersport, banca, etc

- acces rapid catre Baneasa Shopping City si zonele centrale din Bucuresti

Va invit sa programati o vizionare!

Alina Dinoiu

Pentru mai multe oferte, va invit aici: dinoiuimobiliare.ro

Citește mai mult

  • Număr camere
    3
  • Dormitoare
    2
  • Număr bucătării
    1
  • Număr băi
    3
  • Geam la baie
    Da
  • Număr locuri parcare
    2
  • Disponibilitate
    Imediat
  • Tip casă
    Case înșiruite
  • Stare interior
    Ultrafinisat
  • Suprafață utilă
    103 mp
  • Suprafață teren
    50 mp
  • Stadiu construcție
    Finalizată
  • An construcție
    2016
  • Construcție nouă
    Da
  • Tip construcție
    Cărămidă
  • Număr etaje clădire
    2

Facilități

Aer condiționat
Apă
Apometre
Aragaz
Bucătărie deschisă
Bucătărie mobilată
Bucătărie utilată
Cadă
Canalizare
CATV
Centrală proprie
Contor căldură
Contor electric
Contor gaz
Curent
Curte
Curte comună
Debara
Dressing
Faianță
Ferestre PVC
Frigider
Gaz
Geamuri termopan
Grădină proprie
Gresie
Hotă
Iluminat stradal
Încălzire prin pardoseală
Internet
Izolație exterioară
Izolație interioară
Loc de joacă copii
Mașină de spălat rufe
Mașină de spălat vase
Mijloace de transport în comun
Mobilat complet
Mobilat lux
Parcare deschisă
Parchet
Piscină exterioară
Piscină privată
Scară interioară
Străzi asfaltate
Supraveghere video
Telecomandă poartă acces auto
Ușă intrare metal
Uși interior lemn
Vopsea lavabilă
WC Serviciu
Necesare:

Site-ul nu poate funcționa corect fără aceste cookie-uri. Vezi cookie-urile

Statistică:

Strângem statistici anonime despre voi, vizitatorii unici, pentru a vă îmbunătăți experiența dumneavoastră. Vezi cookie-urile

Marketing:

Pentru a ne promova mai eficient serviciile noastre, folosim cookies pentru a vă identifica și a vă oferi proprietăți și servicii personalizate. Vezi cookie-urile

Acest site folosește cookies, află detalii. Alege ce tipuri de cookies dorești să permitem: