ID CP2759561

Vila 4 camere Otopeni -Odaile I COMISION 0%

ID CP2759561

265,000 € (negociabil)

Casă / Vilă cu 4 camere de vânzare
Central, Otopeni
150 mp
2024

Va ofer spre vanzare vila individuala moderna si eleganta, P+1E, cu 4 camere, situata in Odaile - Otopeni, la intrarea in oras, pe o strada foarte linistita, intr-o zona rezidentiala noua deosebita, locatie ideala pentru un stil de viață liniștit, relaxant si confortabil. Vila face parte dintr-un ansamblu rezidential, asigurandu-se astfel intimatea intr-o comunitate noua, cu un stil de vata unic si sofisticat!

Disponibilitate imediata! Toate utilitatile: apa, gaz, electricitate, canalizare

Detalii financiare: 265.000 euro, plus TVA 21%

- achizitie persoana juridica: 265.000 euro cu ta, TVA inclus

COMISION agentie = 0%

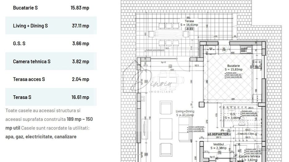
Vila este construita pe P+1E, pe un teren de 277 mp, cu suprafața utilă de 150 mp, cu suprafata construita de 190 mp, cu camere spatioase si luminoase, cu o compartimentare moderna si eficienta a spatiilor, dupa cum urmeaza:

CURTE libera cu zona de gratar si reaxare

PARCARE: 2 locuri in afara curtii ??

PARTER: zona de zi

- hol intrare

- living spatios de 37 mp cu zona de relaxare si zona de dining; acces catre terasa

- bucătărie deschisa de 16 mp, cu acces catre terasa

- baie de 3,7 mp

- camera tehnica de 4 mp

- terasa acces

- terasa de 17 mp, ideala pentru momente de relaxare in familie sau socializare cu prietenii

ETAJ: zona de noapte 3 domri + 2 bai

- hol

- dormitor matrimonial de 22 mp, cu dressing baie proprie de 6 mp (cu fereastra -ideal pentru aerisire naturala)

- 2 dormitoare secundare de 16,3 mp si 15,5mp

- băie secundara de 5 mp, cu fereastra -ideal pentru aerisire naturala

- baie secundara de 5 mp

POD: tehnic, placa beton peste etaj; cu planseu beton, izolat pentru rupere termica eficienta

Facilitati complex: arhitectura moderna contemporana

- comunitate noua si moderna; spatii interioare comune

- complex securizat / poarta automata

Detalii constructie, dotari si finisaje premium:

- design interior modern; amenajari de lux, atmosfera sofisticata

- constructie caramida POROTHERM de 25 cm; pereti interiori caramida plina de 10cm; izolatie exterioara de 10 cm si 15 cm

- incalzire in pardoseala; centrala ARISTON 32 kw

- geamuri tripan Four season / tamplarie VEKA

- feronerie ROTO

- parchet laminat special TARKETT; gresie si ceramica ITALIA; obiecte sanitare IDEAL STANDARD; trepte lemn

- tigla metalica METIGLA

- usi TRACIA DOORS

- pregatire trasee aer conditionat / CCTV

Facilitati locatie:

- acces rapid DN1, centura Bucuresti si mijloace de transport

- acces rapid Aeroport Henri Coanda si Baneasa

- acce rapid magazine Penny si Mega Image aflate la 5 min de mers pe jos

- accae rapid Parc Otopeni: 10 min de mers pe jos

- acces rapid centre comerciale: Otopeni, Balotesti, Baneasa

- unitati educationale si de invatamant: gradinite de stat si private, scoala generala de stat, liceu de stat

- acces rapid centura bucuresti, A0 si A3

Va invit sa programati o vizionare!

Alina Dinoiu

Pentru mai multe oferte, va astept aici: dinoiuimobiliare.ro

Citește mai mult

  • Număr camere
    4
  • Dormitoare
    3
  • Număr bucătării
    1
  • Număr băi
    3
  • Geam la baie
    Da
  • Număr terase
    1
  • Număr locuri parcare
    2
  • Disponibilitate
    Imediat
  • Tip casă
    Individual
  • Stare interior
    Ultrafinisat
  • Anul finisării
    2025
  • Suprafață utilă
    150 mp
  • Suprafață construită
    190 mp
  • Suprafață construită la sol (Amprentă)
    99.0 mp
  • Suprafață teren
    277 mp
  • Acoperiș
    Tablă
  • Stadiu construcție
    Finalizată
  • An construcție
    2024
  • Construcție nouă
    Da
  • Tip construcție
    Cărămidă
  • Număr etaje clădire
    1
  • Are pod
    Da

Facilități

Apă
Apometre
Bucătărie deschisă
Cabină de duș
Cadă
Canalizare
CATV
Centrală proprie
Contor căldură
Contor electric
Contor gaz
Curent
Curte
Curte comună
Faianță
Ferestre PVC
Gaz
Geamuri cu izolație fonică
Geamuri tripan
Grădină proprie
Gresie
Iluminat stradal
Încălzire prin pardoseală
Izolație exterioară
Izolație interioară
Mijloace de transport în comun
Nemobilat
Parcare deschisă
Parchet
Scară interioară
Străzi asfaltate
Supraveghere video
Telecomandă poartă acces auto
Ușă intrare metal
Uși interior lemn
Vopsea lavabilă
WC Serviciu
Zonă pentru barbeque
Alina Dinoiu - DINOIU IMOBILIARE
Alina Dinoiu
Managing Director

0765622276


Solicită chiar acum o vizionare
Nume
Telefon
Email
Sună acum Solicită vizionare
Necesare:

Site-ul nu poate funcționa corect fără aceste cookie-uri. Vezi cookie-urile

Statistică:

Strângem statistici anonime despre voi, vizitatorii unici, pentru a vă îmbunătăți experiența dumneavoastră. Vezi cookie-urile

Marketing:

Pentru a ne promova mai eficient serviciile noastre, folosim cookies pentru a vă identifica și a vă oferi proprietăți și servicii personalizate. Vezi cookie-urile

Acest site folosește cookies, află detalii. Alege ce tipuri de cookies dorești să permitem: