ID CP2796792

Vila 4 Camere Pantelimon I Premium I moderna luminoasa I COMISION 0%

ID CP2796792

243,000 € (negociabil)

Casă / Vilă cu 4 camere de vânzare
Central, Pantelimon
130 mp
2025

Va ofer spre vanzare vila individuala cu 4 camere, 4 bai si 3 dormitoare, in Pantelimon, pe o strada adiacenta str. Rascoala din 1907 - strada asfaltata, intr-o zona noua, moderna, selecta, linistita, locuita, intr-o locatie foarte aproape de Bucuresti, statia de metrou Pantelimon, intr-o comunitate tanara si moderna.

Preţul este de 243.000 EUR (nu se adauga TVA)! Se accepta credit! Ultima Vila!! finalizare Aprilir 2026!

Vilele sunt predate la cheie, complet finisate, cu băile mobilate si utilate!

COMISION agentie = 0%

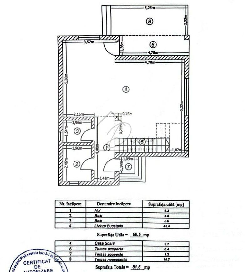
Vila este construita P+1E+Pod, cu suprafata utila de 130 mp, pe un teren de 368 mp, cu o compartimentare moderna si eficienta a spatiilor, dupa cum urmeaza:

PARTER: suprafata utila de 60 mp plus 3 terase, cu suprafata totala de 82 mp

- hol spatios de 6,3 mp

- living spatios si luminos de 45,4 mp, cu iesire catre terasa acoperita si terasa neacoperita

- bucătărie open space

- baie de 5 mp, cu fereastra - ideal pentru aerisire naturala

- baie de 3 mp, cu fereastra - ideal pentru aerisire naturala

- terasa de 17 mp + terasa intrare de 1,2 mp

ETAJ: suprafata utila de 70 mp inclusiv balcon de 3 mp

- 1 dormitor matrimonial de 15 mp, cu baie proprie cu cada si geam

- 2 dormitoare secundare de 14 mp fiecare

- 1 baie secundara de 5 mp, cu fereastra - ideal pentru aerisire naturala

- balcon de 3 mp

POD: spatiu depozitare de 40 mp; izolat cu vata și folie Al, a cu inaltimea la coama de cca 2 metri

TEREN: 368 mp

CURTE: amenajata cu locuri de parcare, alei din beton amprentat, gradina

Dotari si finisaje premium:

- finisaje: travertin, parchet

- geamuri Salamander tripan stejar cu plase pt insecte

- instalatie electrica interioară: conductor FY 1,5 si FY 2,5 , doze, prize, intrerupatoare modulare

- centrala individuală in condensație Immergas 32kw, si calorifere din oțel Romstal (sistem cu distribuitoare)

- corpuri iluminat, bai utilate Romstal

- poarta mare este prevăzută cu sistem automatizare iar cea pietonală cu interfon

- sistem de supraveghere video

Detalii constructie, dotari si finisaje: materiale premium

- constructie BCA cu structura beton armat; sapa mecanizată

- pereți exterior : placați cu polistiren EPS 100 + tencuiala decorativa si travertin

- pereti interior : tencuiala + 3 straturi de glet si vopsiti in alb mat

- acoperis cu țigla metalică Bilka cu sistem pluvial complet pana la nivelul solului

- bransata la toate utilitatile publice: apa, canalizare, gaz, curent trifazic 380

Facilitati locatie:

- 150 m pana la magazinele Selgros, Lidl si Mega Image

- 1 km pana la nodul rutier A0 - Sosea Centura

- noua Gradinita din strada Curcubeului este situată la cca 5- 10 min de mers pe jos

- metrou Pantelimon la 4 km

Va invit sa programati o vizionare!

Alina Dinoiu

Pentru mai multe detalii, va astept aici dinoiuimobiliare.ro

Citește mai mult

  • Număr camere
    4
  • Dormitoare
    3
  • Număr bucătării
    1
  • Număr băi
    4
  • Geam la baie
    Da
  • Număr balcoane
    1
  • Număr terase
    2
  • Număr locuri parcare
    2
  • Disponibilitate
    Imediat
  • Tip casă
    Individual
  • Stare interior
    Ultrafinisat
  • Anul finisării
    2025
  • Suprafață utilă
    130 mp
  • Suprafață construită la sol (Amprentă)
    81.0 mp
  • Suprafață teren
    368 mp
  • Suprafață terasă
    18.3 mp
  • Deschidere
    14.5 m
  • Acoperiș
    Tablă
  • Stadiu construcție
    Finalizată
  • An construcție
    2025
  • Construcție nouă
    Da
  • De la dezvoltator
    Da
  • Tip construcție
    BCA
  • Număr etaje clădire
    1
  • Are pod
    Da

Facilități

Apă
Apometre
Bucătărie deschisă
Cabină de duș
Cadă
Calorifere
Canalizare
Centrală proprie
Contor căldură
Contor electric
Contor gaz
Curent
Curent trifazic (380V)
Curte
Debara
Faianță
Ferestre PVC
Gaz
Geamuri cu izolație fonică
Geamuri termopan
Geamuri tripan
Grădină proprie
Gresie
Interfon
Irigații
Izolație exterioară
Izolație interioară
Mijloace de transport în comun
Nemobilat
Parcare deschisă
Parchet
Pereți piatră naturală
Podele piatră naturală
Scară interioară
Străzi asfaltate
Străzi pietruite
Supraveghere video
Ușă intrare metal
Uși interior lemn
Vopsea lavabilă
WC Serviciu
Zonă pentru barbeque
Alina Dinoiu - DINOIU IMOBILIARE
Alina Dinoiu
Managing Director

0765622276


Solicită chiar acum o vizionare
Nume
Telefon
Email
Sună acum Solicită vizionare
Necesare:

Site-ul nu poate funcționa corect fără aceste cookie-uri. Vezi cookie-urile

Statistică:

Strângem statistici anonime despre voi, vizitatorii unici, pentru a vă îmbunătăți experiența dumneavoastră. Vezi cookie-urile

Marketing:

Pentru a ne promova mai eficient serviciile noastre, folosim cookies pentru a vă identifica și a vă oferi proprietăți și servicii personalizate. Vezi cookie-urile

Acest site folosește cookies, află detalii. Alege ce tipuri de cookies dorești să permitem: