ID CP2550480

Vila duplex noua 5 camere Buftea parter/etaj/pod

ID CP2550480

170,000 €

Casă / Vilă cu 5 camere de vânzare
Central, Buftea
173 mp
2021

Va ofer spre vanzare aceasta vila tip duplex cu 5 camere, constructie (parter, etaj 1 si pod/mansarda) in Buftea, intr-o zona linistita

.

Vila se vinde asa cum este prezentata in poze complet finisata, mobilata si utilata!

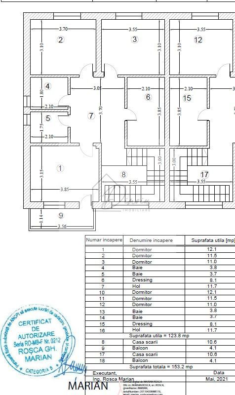
Vila este construita in 2021, cu suprafata utila totala de 171 mp (146 mp plus terasa de 25 mp), plus suprafata podului care se poate transforma in mansarda, fiind compusa din parter, etaj 1 si pod /mansarda, dupa cum urmeaza:

-teren de 150 mp; curte cu gazon preponderent si sistem de irigare automat

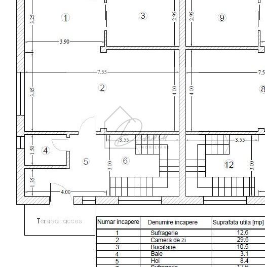
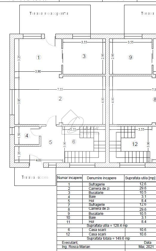
PARTER: suprafata utila de 75 mp plus terasa de 25 mp

- hol intrare spatios si luminos de 8,4 mp

- living foarte luminos si spatios de 42 mp, cu zona de relaxare si zona de dining

- dormitor cu pat si TV

- bucatarie inchisa de 10,5 mp, complet utilata: combina frigorifica, plita, cuptor, hota, masina de spalat rufe

- baie de 3 mp, cu fereastra, ideal pentru aerisire naturala

- casa scarii de 11 mp

- terasa acoperita de 25 mp cu canapea , masa si scaune, ideala pentrun momente de relaxare

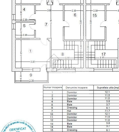
ETAJ : suprafata utila de 77 mp inclusiv balcon de 4 mp

- hol spatios de 12 m

- 3 dormitoare (de 12mp, 11,5 mp, si 11mp)

- dressing de 8 mp

- 2 bai de 4 mp fiecare, cu cada si cu fereastra, ideal pentru aerisire naturala

- casa scarii de 11 mp

- balcon de 4 mp

POD: se poate mansarda, avand suprafata cat toata amprenta casei si o inaltime de 3 m la coama, inaltimea minima find 1 m la extremitatile laterale

Utilitati: apa, canalizare, gaz si curent electric. Drum asfaltat, strada principala si iluminat stradal.

Dotari si finisaje:

- sistem camere de supraveghere

- constructia este realizata din caramida Porotherm si are izolatie de 10 cm

Va invit sa programati o vizionare!

Alina Dinoiu

Citește mai mult

  • Număr camere
    5
  • Dormitoare
    3
  • Număr bucătării
    1
  • Număr băi
    3
  • Geam la baie
    Da
  • Număr terase
    1
  • Disponibilitate
    Imediat
  • Tip casă
    Duplex
  • Stare interior
    Ultrafinisat
  • Suprafață utilă
    173 mp
  • Suprafață teren
    150 mp
  • Suprafață terasă
    25 mp
  • Stadiu construcție
    Finalizată
  • An construcție
    2021
  • Construcție nouă
    Da
  • Număr etaje clădire
    1
  • Are pod
    Da

Facilități

Apă
Apometre
Aragaz
Bucătărie închisă
Bucătărie mobilată
Bucătărie utilată
Cadă
Calorifere
Canalizare
Centrală proprie
Contor căldură
Contor electric
Contor gaz
Curent
Curte
Dressing
Faianță
Ferestre PVC
Frigider
Gaz
Geamuri termopan
Grădină proprie
Gresie
Hotă
Iluminat stradal
Irigații
Izolație exterioară
Izolație interioară
Mașină de spălat rufe
Mobilat complet
Mobilat lux
Parchet
Străzi asfaltate
Supraveghere video
TV
Ușă intrare metal
Vopsea lavabilă
Alina Dinoiu - DINOIU IMOBILIARE
Alina Dinoiu
Managing Director

0765622276


Solicită chiar acum o vizionare
Nume
Telefon
Email
Sună acum Solicită vizionare
Necesare:

Site-ul nu poate funcționa corect fără aceste cookie-uri. Vezi cookie-urile

Statistică:

Strângem statistici anonime despre voi, vizitatorii unici, pentru a vă îmbunătăți experiența dumneavoastră. Vezi cookie-urile

Marketing:

Pentru a ne promova mai eficient serviciile noastre, folosim cookies pentru a vă identifica și a vă oferi proprietăți și servicii personalizate. Vezi cookie-urile

Acest site folosește cookies, află detalii. Alege ce tipuri de cookies dorești să permitem: