ID CP2761421

Vila 5 camere Otopeni I central - Parcul Unirii I finalizata I COM 0%

ID CP2761421

375,000 € (negociabil)

Casă / Vilă cu 5 camere de vânzare
Central, Otopeni
209 mp
2024

Va ofer spre vanzare vila premium, moderna, tip duplex, cu 5 camere, 4 dormitoare si 5 bai, in Otopeni, intr-o zona centrala, intr-un cartier linistit, langa Parcul Unirii, cu acces rapid la DN1, locatie ideala pentru un stil de viață liniștit, relaxat si confortabil. Acces facil catre toate centrele comerciale din Otopeni, Balotesti si Baneasa!

Disponibilitate imediata pentru vanzare! Vila se vinde la cheie! Ideal familie - mutare imediata! 10 minute de mers pe jos pana la McDonald's!

Detalii financiare: pret vanzare 375.000 euro

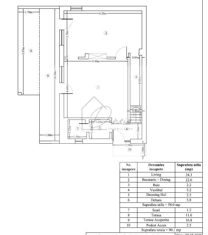
Vila este finalizata in 2025, cu P+1E+M, construita pe un teren cu o suprafata totala de 227 mp, cu suprafata utila de 209 mp (inclus terase ), cu o compartimentare eficienta si moderna a spatiilor, dupa cum urmeaza:

PARTER: zona de zi - suprafata utila totala de 90 mp, inclusiv terase

- hol de 3,2 mp; dressing hol de 2,5; debara de 4 mp

- living generos de 24 mp cu zona de relaxare; șemineu modern pe lemne si terasă

- bucatarie de 22 mp cu zona de dining; acces pe terasa acoperita

- baie de 2,2 mp, cu ferestra - ideal pentru aerisire naturala

- terasa acces vila de 2,5 mp

- terasa generoasa acoperita de 16,8 mp + terasa neacoperita de 11,6 mp

ETAJ: zona de noapte - suprafata utila totala de 74 mp

- hol de 4,3 mp

- dormitor matrimonial de 16,8 mp + dressing de 3,6 mp + baie de 6,2 mp (cu ferestra - ideal pentru aerisire naturala)

- dormitor matrimonail 2 (13,8 mp + baie proprie de 3,3 mp)

- dormitor matrimonail 3 (14,3 mp + baie proprie de 3,4 mp)

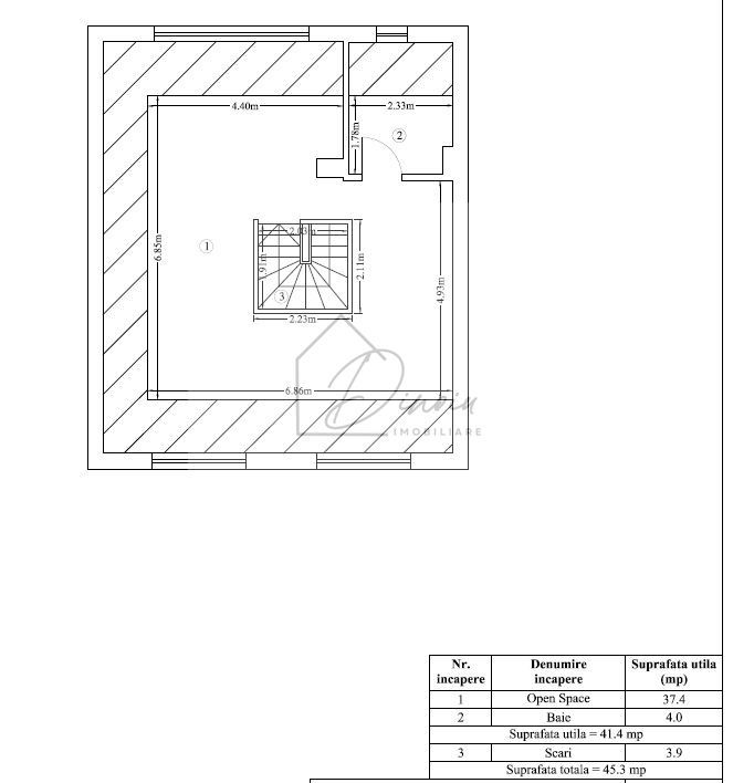
MANSARDA: suprafata utila totala de 45 mp

- open space de 37,4 mp

- baie spatioasa de 4 mp

CURTE: amenajata

PARCARE: proprie pentru 2 masini

Dotari si finisaje premium:

- living cu șemineu modern pe lemne si terasă

- finisaje premium, aspirator centralizat, placări marmură, parchet triplu stratificat

- încălzire în pardoseală TECE

- tâmplărie Salamander cu geam tripan

Facilitati locatie:

- acces rapid DN1 si mijloace de transport

- acces rapid Aeroport Henri Coanda si Baneasa

- acces rapid centre comerciale: Otopeni, Balotesti, Baneasa

- unitati educationale si de invatamant: gradinite de stat si private, scoala generala de stat, liceu de stat, Academia de Politie

- acces rapid centura Bucuresti, A0 si A3

Va invit sa programati o vizionare!

Alina Dinoiu

Pentru mai multe oferte, va astept aici: dinoiuimobiliare.ro

Citește mai mult

  • Număr camere
    5
  • Dormitoare
    4
  • Număr bucătării
    1
  • Număr băi
    5
  • Geam la baie
    Da
  • Număr terase
    2
  • Număr locuri parcare
    2
  • Disponibilitate
    Imediat
  • Tip casă
    Duplex
  • Stare interior
    Ultrafinisat
  • Suprafață utilă
    209 mp
  • Suprafață construită
    218 mp
  • Suprafață construită la sol (Amprentă)
    94.0 mp
  • Suprafață teren
    227 mp
  • Stadiu construcție
    Finalizată
  • An construcție
    2024
  • Construcție nouă
    Da
  • Tip construcție
    Cărămidă
  • Număr etaje clădire
    1
  • Are mansardă
    Da

Facilități

Apă
Bucătărie închisă
Cabină de duș
Cadă
Canalizare
Centrală proprie
Curent
Curte
Debara
Dressing
Faianță
Ferestre PVC
Gaz
Geamuri cu izolație fonică
Geamuri tripan
Grădină proprie
Gresie
Încălzire prin pardoseală
Izolație exterioară
Izolație interioară
Nemobilat
Parcare deschisă
Parchet
Scară interioară
Străzi asfaltate
Ușă intrare metal
Uși interior lemn
Vedere panoramică
Vopsea lavabilă
WC Serviciu
Alina Dinoiu - DINOIU IMOBILIARE
Alina Dinoiu
Managing Director

0765622276


Solicită chiar acum o vizionare
Nume
Telefon
Email
Sună acum Solicită vizionare
Necesare:

Site-ul nu poate funcționa corect fără aceste cookie-uri. Vezi cookie-urile

Statistică:

Strângem statistici anonime despre voi, vizitatorii unici, pentru a vă îmbunătăți experiența dumneavoastră. Vezi cookie-urile

Marketing:

Pentru a ne promova mai eficient serviciile noastre, folosim cookies pentru a vă identifica și a vă oferi proprietăți și servicii personalizate. Vezi cookie-urile

Acest site folosește cookies, află detalii. Alege ce tipuri de cookies dorești să permitem: