ID CP2328457

Vila noua din duplex Corbeanca Hornbach DN1

ID CP2328457

199,000 € (negociabil)

Casă / Vilă cu 5 camere de vânzare
Corbeanca
121 mp
2022

DINOIU IMOBILIARE va ofera spre vanzare vila noua cosntruita in 2024, in duplex, in Corbeanca Petresti, langa Hornbach, in apropiere de DN1, intr-o zona linistita

Vila va fi predata si va fi predata cu finisaje si dotari complete (gresie, faianta, parchet, usi, centrala, bai utilate, etc) pe care le puteti alege, avand astfel posibilitatea sa va personalizati locuinta d-stra.

Se accepta credit.

Vila este tip duplex,si a fost construita in 2022, cu urmatoarele detalii:

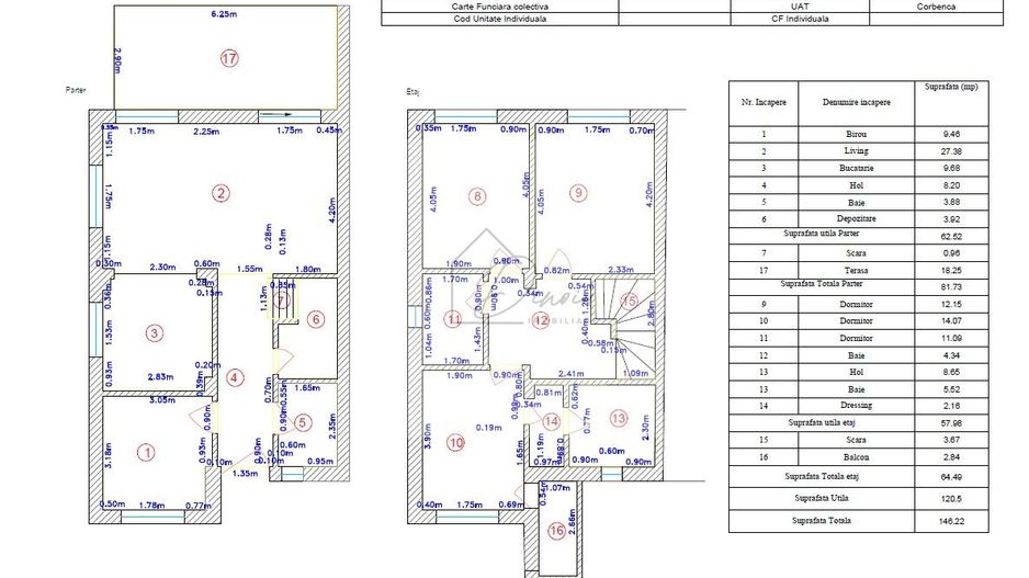
- suprafata construita 151 mp; suprfata utila 121 mp; teren 300 mp pentru fiecare vila

- utilitati: gaz, curent, put propriu, fosa

- compartimentare: parter, etaj si pod

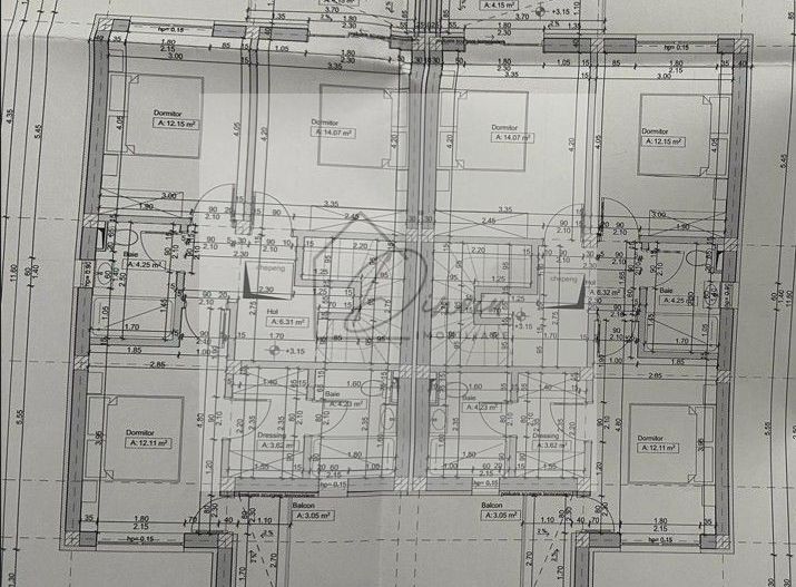
Parter: suprafata utila totala 82 mp

- hol spatios de 8 mp; living spatios si luminos de 27 mp; bucatarie de 10 mp semideschisa

- birou 9 mp; camera depozitare de 4 mp; baie 4 mp;

- terasa generoasa de 18 mp, cu iesire din living

Etaj: suprafata utila totala de 65 mp

- dormitor matrimonial 14 mp, cu dressing 2 mp si baie proprie de 6 mp; cu iesire pe balcon

- 2 dormitoare (12 mp si respectiv 11 mp) cu 1 baie de 4 mp; 1 dormitor cu iesire pe balcon

Pod: cat amprenta etajului

- 2 locuri de parcare in curte

Detalii constructie:

- incalzire in pardoseala TECE

- a 2-a placa de beton intre etaj si pod

- cadre de beton, caramida Porotherm, tabla prefatuita, glafuri exterioare granit, izolatie polistiren 10 cm Caparol

- fatada executata cu tencuiala decorativa Caparol

- tamplarie Rehau Synego, 7 camere

- feronerie Rotto

Avantaje locatie:

- 1,4 km pana la Hornbach, Altex, DN1 Value Centre, Lidl, magazine, restaurante, farmacii, Carrefour

- acces rapid DN1, centura Bucuresti, conecatre rapida A0

- 1,4 km pana la mijloace de transport, autobz 441

- aproape de Therme Bucuresti, Baneasa Shopping City, Decathlon, etc

Va invit sa programati o vizionare!

Alina Dinoiu

Citește mai mult

  • Număr camere
    5
  • Dormitoare
    3
  • Număr bucătării
    1
  • Număr băi
    3
  • Geam la baie
    Da
  • Număr balcoane
    2
  • Număr terase
    1
  • Număr locuri parcare
    2
  • Disponibilitate
    Imediat
  • Tip casă
    Individual
  • Stare interior
    Ultrafinisat
  • Anul finisării
    2024
  • Suprafață utilă
    121 mp
  • Suprafață construită
    151 mp
  • Suprafață teren
    300 mp
  • Suprafață terasă
    18 mp
  • Stadiu construcție
    Semifinisat
  • An construcție
    2022
  • Construcție nouă
    Da
  • Număr etaje clădire
    1
  • Are pod
    Da

Facilități

Apă
Bucătărie deschisă
Cadă
Centrală proprie
Contor electric
Contor gaz
Curent
Curte
Debara
Faianță
Fosă septică
Gaz
Geamuri cu izolație fonică
Geamuri tripan
Grădină proprie
Gresie
Încălzire prin pardoseală
Izolație exterioară
Izolație interioară
Nemobilat
Parcare deschisă
Parchet
Străzi pietruite
Ușă intrare metal
Vopsea lavabilă
Alina Dinoiu - DINOIU IMOBILIARE
Alina Dinoiu
Managing Director

0765622276


Solicită chiar acum o vizionare
Nume
Telefon
Email
Sună acum Solicită vizionare
Necesare:

Site-ul nu poate funcționa corect fără aceste cookie-uri. Vezi cookie-urile

Statistică:

Strângem statistici anonime despre voi, vizitatorii unici, pentru a vă îmbunătăți experiența dumneavoastră. Vezi cookie-urile

Marketing:

Pentru a ne promova mai eficient serviciile noastre, folosim cookies pentru a vă identifica și a vă oferi proprietăți și servicii personalizate. Vezi cookie-urile

Acest site folosește cookies, află detalii. Alege ce tipuri de cookies dorești să permitem: