ID CP2832786

COM 0% I Vila 6 camere Aviatiei Pipera I Henri Coanda I Intabulata

ID CP2832786

519,000 € (negociabil)

Casă / Vilă cu 6 camere de vânzare
Central, Voluntari
166 mp
2021

Va ofer spre vanzare vila individuala cu 6 camere, situata in cartierul Henri Coanda, in Pipera _ Voluntari, intr-o zona foarte linistita, deosebita si selecta, intr-o comunitate selecta si exclusivista.

Cartierul Henri Coanda are toate utilităţile stradale: curent, gaze, apa, canalizare; iluminat public; parc; loc de promenada; locuri de parcare, etc.

Locatie deosebita in zona! Locatie deosebita in cartier!

Detalii financiare: contractvanzare cumparare; pret 519.000 eur, usor negociabil.

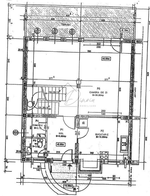
Vila are S + P + M + Pod, cu suprafata utila totala de 166 mp, suprafata teren de 440 mp, finalizata in anul 2021, fiind compartimentata dupa cum urmeaza:

CURTE: generoasa cu vegetatie matura

GARAJ: din caramida, 1 loc de parcare

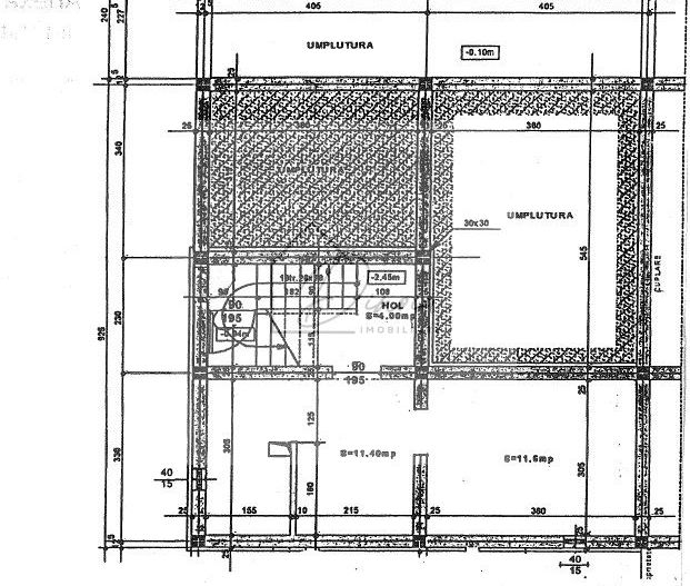
SUBSOL: suprafata utila de 39 mp

- hol de 4 mp

- 2 camere de 12 mp fiecare, cu ferestre pentru aerisire

- spatiu depozitare de 11 mp

PARTER: suprafata utila de 64,6 plus terasa acoperita

- hol intrare de 9 mp

- living generos de 38.3 mp, cu acces catre terasa

- bucătărie inchisa de 12.3 mp, complet mobilata si utilata

- grup sanitar de 2,8 mp, cu fereastra - ideal pentru aerisire naturala

- terasa acoperita de 24 mp

MANSARDA : suprafata utila de 62 plus balcon

- hol de 6.3 mp + debara de 1.8 mp

- dormitor 1 de 12,1 mp, cu acces catre balcon

- dormitor 2 de 17.10 mp plus debara de 1.8 mp

- dormitor 3 de 13 mp

- baie de 6,8 mp cu cada si cu fereastra - ideal pentru aerisire naturala

- baie de 2,8 mp cu cabina dus si cu fereastra - ideal pentru aerisire naturala

Dotari si finisaje & facilitati

- racordata la toate utilităţile: apa, canalizare, gaz, curent

- curte generoasa

- centrală curent electric

- placa de beton între parter si mansarda

Va invit sa programati o vizionare!

Alina Dinoiu

Pentru mai multe oferte, va invit aici: dinoiuimobiliare.ro

Citește mai mult

  • Număr camere
    6
  • Dormitoare
    3
  • Număr bucătării
    1
  • Număr băi
    3
  • Geam la baie
    Da
  • Număr balcoane
    1
  • Număr terase
    1
  • Număr garaje
    1
  • Număr locuri parcare
    2
  • Disponibilitate
    Imediat
  • Tip casă
    Individual
  • Stare interior
    Ultrafinisat
  • Suprafață utilă
    166 mp
  • Suprafață construită
    200 mp
  • Suprafață teren
    440 mp
  • Suprafață terasă
    24 mp
  • Deschidere
    30 m
  • Acoperiș
    Țiglă
  • Stadiu construcție
    Finalizată
  • An construcție
    2021
  • Construcție nouă
    Da
  • Tip construcție
    Cărămidă
  • Număr etaje clădire
    1
  • Număr subsoluri
    1
  • Are demisol
    Da
  • Are pod
    Da

Facilități

Acoperiș
Aer condiționat
Apă
Apometre
Aragaz
Bucătărie închisă
Bucătărie mobilată
Bucătărie utilată
Cabină de duș
Cadă
Calorifere
Canalizare
CATV
Centrală proprie
Contor căldură
Contor electric
Contor gaz
Curent
Curte
Dressing
Faianță
Ferestre PVC
Frigider
Garaj
Gaz
Geamuri cu izolație fonică
Geamuri termopan
Grădină proprie
Gresie
Hotă
Iluminat stradal
Irigații
Izolație exterioară
Izolație interioară
Mașină de spălat rufe
Mijloace de transport în comun
Mobilat complet
Parcare deschisă
Parchet
Rulouri / obloane electrice
Scară interioară
Străzi asfaltate
Supraveghere video
Telecomandă poartă garaj
TV
Ușă intrare metal
Uși interior lemn
Vopsea lavabilă
WC Serviciu
Alina Dinoiu - DINOIU IMOBILIARE
Alina Dinoiu
Manager Agentie

0765622276


Solicită chiar acum o vizionare
Nume
Telefon
Email
Sună acum Solicită vizionare
Necesare:

Site-ul nu poate funcționa corect fără aceste cookie-uri. Vezi cookie-urile

Statistică:

Strângem statistici anonime despre voi, vizitatorii unici, pentru a vă îmbunătăți experiența dumneavoastră. Vezi cookie-urile

Marketing:

Pentru a ne promova mai eficient serviciile noastre, folosim cookies pentru a vă identifica și a vă oferi proprietăți și servicii personalizate. Vezi cookie-urile

Acest site folosește cookies, află detalii. Alege ce tipuri de cookies dorești să permitem: