ID CP2331365

Spatiu Birouri sau Comercial 105 mp Emil Racovita Pipera I COMISION 0%

ID CP2331365

200,000 € (negociabil)

Spațiu de birouri de vânzare
Central, Voluntari
105 mp
2016

DINOIU IMOBILIARE va ofera spre vanzare spatiu de 110 mp, pentru birouri sau spatiu comercial, disponibil imediat, pe str. Emil Racovita nr. 35-39 (in cladirea de birouri AZUR Office, de la intrarea in cartierul rezidential AZUR), Pipera, aproape de rondul OMV, aproape de Lemon Park.

Pret vanzare: 200.000 eur, cu taxare inversa.

COMISION agentie = 0%

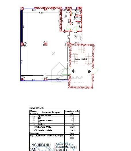
Spatiul este situat la etajul 1, cu suprafata utila de 105 mp, fiind compus din:

- spatiu birouri/comercial de 90 mp, cu compartimentare open-space; mocheta; aer conditionat

- hol de 4,3 mp

- camera tehnica de 5 mp,

- grup sanitar de 6 mp

- 2 locuri de parcare

Proprietatea are acces stradal, vizibiliate foarte buna, acces rapid catre Pipera, Voluntari si autostrada A3, A0 si centura Bucuresti.

Detalii spatiu, dotari:

- inaltime 3,20 m

- centrala termica proprie si calorifere; aer conditionat

- contorizare individuala energie electrica

- paza

- reclama luminoasa

Va invit sa porgramati o vizionare!

Alina Dinoiu

Pentru mai multe oferte, va astept aici dinoiuimobiliare.ro

Citește mai mult

  • Tip imobil
    Clădire birouri
  • Etaj
    1
  • Număr camere
    1
  • Număr băi
    1
  • Suprafață construită
    120 mp
  • Suprafață utilă
    105 mp
  • Disponibilitate
    Imediat
  • Suprafață totală birouri
    105 mp
  • Compartimentare spațiu
    Open space
  • Parcări suprafață
    2
  • An construcție
    2016
  • Construcție nouă
    Da
  • Număr etaje clădire
    2

Facilități

Centrală termică
Centru comercial în apropiere
Contorizare separată
Control individual AC pentru fiecare zonă de birou
Ferestre care se deschid
Gresie
Grupuri sanitare amenajate și utilate
Mochetă
Parcare deschisă
Pază permanentă
Stație de autobuz în apropiere
Vedere spre oraș
Alina Dinoiu - DINOIU IMOBILIARE
Alina Dinoiu
Managing Director

0765622276


Solicită chiar acum o vizionare
Nume
Telefon
Email
Sună acum Solicită vizionare
Necesare:

Site-ul nu poate funcționa corect fără aceste cookie-uri. Vezi cookie-urile

Statistică:

Strângem statistici anonime despre voi, vizitatorii unici, pentru a vă îmbunătăți experiența dumneavoastră. Vezi cookie-urile

Marketing:

Pentru a ne promova mai eficient serviciile noastre, folosim cookies pentru a vă identifica și a vă oferi proprietăți și servicii personalizate. Vezi cookie-urile

Acest site folosește cookies, află detalii. Alege ce tipuri de cookies dorești să permitem: