ID CP2856530

Apartament 2 camere Onix Park Aviatiei Pipera I Mobilat Utilat I COM0%

ID CP2856530

151,000 €

Apartament cu 2 camere de vânzare
Nord, Voluntari
56 mp
2023

Va ofer spre vanzare apartment cu 2 camere (2 bai) decomandat, luminos, cu vedere panoramica superba, situat in Complexul Rezidential Onix North Park, in zona Aviatiei, in Nordul Bucurestiului.

Disponibilitate imediata! Gata de mutare - se vinde complet mobilat si utilat, ca si in poze!

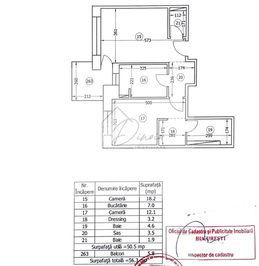
Apartamentul este situat la etajul 6/11 intr-un bloc construit in 2022, oferind intimitate si liniste, cu suprafata utila de 56,3mp (50,5 mp + balcon de 5,8mp), foarte luminos, cu vedere panoramica, cu o compartimentare moderna si eficienta a spatiilor, dupa cum urmeaza:

- hol de 3,5 mp

- living foarte luminos de 18,2 mp, cu acces pe balcon; zona de relaxare; TV , aer conditionat, spatii de depozitare

- bucatarie inchisa de 7 mp, complet mobilata si utilata; zona de dining

- dormitor matrimonial de 12mp + baie proprie de 4,6mp + zona dressing de 3,2mp

- baie de serviciu de 2mp, finisaje premium

- balcon de 5,8mp

- loc de parcare subteran disponibil la un cost suplimentar de 21.000 euro; Loc de parcare subteran pentru 2 masini - tip Klaus

Dotari si finisaje premium:

- centrala termica; termostat conectat la wifi; incalzire in pardoseala pentru confort termic ridicat iarna si costuri reduse

- aer conditionat pentru confort termic ridicat vara

- videointerfon

- mobilier bai premium

- mobilier premium; draperii pe sistem electric conectate la aplicatie pe telefon, in living; canapea extensibila;

- electrocasnice premium: masina de spalat rufe LG, masina de spalat vase Whirlpool, cuptor electric Whirlpool, hota, frigider Samsung inaltime 2m

- feronerie Bloom

- blat bucatarie granit

Facilitati complex Onix Park Aviatiei Pipera

- securizat cu bariera si paza umana24/7; supraveghere video 24/7

- spatii verzi si alei pietonale; liniste si aer curat; curte comuna; lift

- in incinta o cafenea Ted's Coffee

- in curand: spatii comerciale, centru SPA si gradinita

- omplex rezidential nou, curat si bine administrat

Facilitati locatie: aproape de metrou Aurel Vlaicu

- în proximitatea celui mai mare hub office din nordul capitalei

- centru fitness/wellness; bazin semiolimpic de înot

- Lidl la 500 m; Kaufland: la 700 m

- statii autobuz STB si STV foarte aproape

- 1 km: Pipera Plaza, Lidl, farmacie, magazine, restaurante

- 2 km: Metrou Pipera; Metrou Aurel Vlaicu; Promenada Mall

- 2,6 km : Parc Herastrau

- acces rapid A3, A0 si centura Bucuresti, DN1

Va invit sa programati o vizionare!

Alina Dinoiu

Pentru mai multe detalii, va astept aici dinoiuimobiliare.ro

Citește mai mult

  • Tip apartament
    Apartament
  • Compartimentare
    Decomandat
  • Număr camere
    2
  • Dormitoare
    1
  • Număr bucătării
    1
  • Număr băi
    2
  • Etaj
    6
  • Suprafață utilă
    56 mp
  • Suprafață totală
    56 mp
  • Disponibilitate
    Imediat
  • Confort
    Lux
  • Stare interior
    Ultrafinisat
  • Anul finisării
    2024
  • Număr balcoane
    1
  • Număr locuri parcare
    2
  • Imobil
    Bloc de apart.
  • Stadiu construcție
    Finalizată
  • An construcție
    2023
  • Construcție nouă
    Da
  • Număr etaje clădire
    11

Facilități

Acces pentru persoane cu dizabilități
Aer condiționat
Apă
Apometre
Bucătărie închisă
Bucătărie mobilată
Bucătărie utilată
Canalizare
CATV
Centrală proprie
Contor căldură
Contor electric
Contor gaz
Curent
Curte comună
Dressing
Faianță
Ferestre care se deschid
Ferestre PVC
Frigider
Garaj subteran
Gaz
Geamuri cu izolație fonică
Geamuri termopan
Gresie
Hotă
Iluminat stradal
Încălzire prin pardoseală
Interfon
Izolație exterioară
Izolație interioară
Lift
Mașină de spălat rufe
Mijloace de transport în comun
Mobilat complet
Mobilat lux
Parcare acoperită
Parcare biciclete
Pază
Pază permanentă
Spații agrement
Străzi asfaltate
Supraveghere video
Telecomandă poartă acces auto
Telecomandă poartă garaj
TV
Ușă intrare metal
Uși interior lemn
Videointerfon
Vopsea lavabilă
WC Serviciu
Alina Dinoiu - DINOIU IMOBILIARE
Alina Dinoiu
Managing Director

0765622276


Solicită chiar acum o vizionare
Nume
Telefon
Email
Sună acum Solicită vizionare
Necesare:

Site-ul nu poate funcționa corect fără aceste cookie-uri. Vezi cookie-urile

Statistică:

Strângem statistici anonime despre voi, vizitatorii unici, pentru a vă îmbunătăți experiența dumneavoastră. Vezi cookie-urile

Marketing:

Pentru a ne promova mai eficient serviciile noastre, folosim cookies pentru a vă identifica și a vă oferi proprietăți și servicii personalizate. Vezi cookie-urile

Acest site folosește cookies, află detalii. Alege ce tipuri de cookies dorești să permitem: