ID CP2685714

COMISION 0% I 3 camere 1 Decembrie 1918 - Salajan I metrou

ID CP2685714

115,000 € (negociabil)

Apartament cu 3 camere de vânzare
1 Decembrie 1918, Bucuresti
63 mp
1979

Va ofer spre cumparare apartament cu 3 camere situat in Titan, zona 1 Decembrie 1918, langa Lukoil, la 8 min/ 550 m fata de statia de metrou 1 Decembrie 1918, intr-o zona linistita.

Disponibilitate imediata! Se vinde asa cum este prezentat in poze, mobilat si utilat!

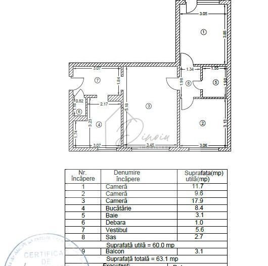
Apartamentul este semi-decomandat, cu suprafata utila totala de 63 mp (59,5 mp plus balcon de 3,6 mp), situat la etajul 4/4, intr-un bloc solid, construit in anul 1979 si reabilitat termic, fiind compartimentat dupa cum urmeaza:

- hol intrare de 5,6 mp + debara de 1 mp + camara de 1,5 mp

- living de 18 mp; aer conditionat

- bucatarie de 7 mp, cu fereastra - ideal pentru aerisire naturala

- 2 dormitoare de 11,7 mp si 9,5 mp

- 1 baie de 3 mp, cu cada

- balcon tip logie de 3,6 mp inchis cu geam termopan

Dotari si finisaje apartament: geamuri termopan si tamplarie PVC; aer conditionat

Avantaje bloc: bloc construit in 1979 (dupa cutremur) si reabilitat termic

Avantaje si facilitati locatie:

- 2 min de mers pe jos pana la statia de tramvai

- 8 min / 550 m de mers pe jos pana la Metrou 1 Decembrie - linia rosie

- aproape de unitati de invatamant: Gradinita 196, Scoala Gimnaziala 149, Liceul Costin Nenitescu

- supermarketuri: Mega Image, Profi, Penny, Piata Trapezului,

- aproape de zona comerciala Pallady: Lidl, Dedeman, Leroy Merlin, Auchan, Ikea, Decathlon, etc

- acces rapid A2, centura Bucuresti si A0

Va invit sa programati o vizionare!

Alina Dinoiu

Citește mai mult

  • Tip apartament
    Apartament
  • Compartimentare
    Semidecomandat
  • Număr camere
    3
  • Dormitoare
    2
  • Număr bucătării
    1
  • Număr băi
    1
  • Etaj
    4
  • Suprafață utilă
    63 mp
  • Suprafață totală
    63 mp
  • Disponibilitate
    Imediat
  • Confort
    1
  • Stare interior
    Finisat clasic
  • Număr balcoane
    1
  • Imobil
    Bloc de apart.
  • Stadiu construcție
    Finalizată
  • An construcție
    1979
  • Tip construcție
    Beton
  • Reabilitat termic
    Da
  • Număr etaje clădire
    4

Facilități

Aer condiționat
Apă
Apometre
Aragaz
Bucătărie mobilată
Bucătărie utilată
Cadă
Calorifere
Canalizare
Contor electric
Curent
Dressing
Faianță
Ferestre PVC
Frigider
Gaz
Geamuri termopan
Gresie
Hotă
Iluminat stradal
Interfon
Izolație exterioară
Mijloace de transport în comun
Mobilat complet
Parchet
Străzi asfaltate
Termoficare
TV
Ușă intrare metal
Uși interior lemn
Vopsea lavabilă
Alina Dinoiu - DINOIU IMOBILIARE
Alina Dinoiu
Managing Director

0765622276


Solicită chiar acum o vizionare
Nume
Telefon
Email
Sună acum Solicită vizionare
Necesare:

Site-ul nu poate funcționa corect fără aceste cookie-uri. Vezi cookie-urile

Statistică:

Strângem statistici anonime despre voi, vizitatorii unici, pentru a vă îmbunătăți experiența dumneavoastră. Vezi cookie-urile

Marketing:

Pentru a ne promova mai eficient serviciile noastre, folosim cookies pentru a vă identifica și a vă oferi proprietăți și servicii personalizate. Vezi cookie-urile

Acest site folosește cookies, află detalii. Alege ce tipuri de cookies dorești să permitem: