ID CP2729988
COM 0% I Apartament 4 camere Alba Iulia I B-dul Unirii I Ultracentral
Această proprietate nu mai este activă,
te invităm să vizualizezi proprietăți similare
ID CP2729988
350,000 € (negociabil)
Va propun apartament 4 camere de vanzare, situat in Piata Alba Iulia nr. 1, in sectorul 3, intr-o locatie ultracentrala si selecta, aproape de Centrul Vechi si 5 min de fata de metrou.
Disponibilitate imediata! Se vinde mobilat si utilat - asa cum este prezentat in poze!
Ideal atât pentru o familie cu copii cât şi pentru birouri!
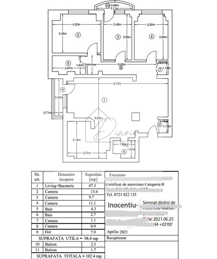
Apartamentul este decomandat confort 1, situat la etajul 6/10, intr-un imobil monolit, construit in 2001, cu suprafata utila de 102,4 mp (98,4 mp plus balcoane de 4 mp), cu orientare dubla catre Est si Nord-Est, cu o compartimentare moderna si eficienta - pe 2 zone de zi si de noapte, dupa cum urmeaza:
Zona de zi:
- living spatios de 47,3 mp cu zona de relaxare, zona de dining si zona de birou; multiple spatii de depozitare generoase
- bucatarie open space + camara de 1mp, cu zona de bar
- baie de 3 mp cu cabina dus
- balcon
Zona de noapte:
- hol interior de 8 mp + camara de 1,1 mp
- 3 dormitoare de 13,4 mp, 11,1 mp si 9,7 mp
- baie de 4,3 mp cu cada si fereastra - ideal pentru aerisire naturala
- balcon
- boxa la subsol- spatiu de depozitare generos
Locuinţa oferă o privelişte deosebită pe partea din spatele blocului, cu vedere panoramica libera , cu cele mai spectaculoase apusuri de soare (vezi poză).
Dotari si finisaje:
- parchet lemn masiv original, foarte bine întreţinut
- tâmplărie PVC nouă GEALAN, antifonică, integral schimbată: 7 camere, geam Low-E tripan, 4 seasons, glafuri interior PVC, exterior aluminiu; rolete
- mobilă nouă de bucătărie + hol, frealizata pe comandă
- 2 aparate aer conditionat Samsung de 12.000 BTU si 9.000 BTU
- uşă metalică antiefracţie şi antizgâriere
Avantaje apartament: certificat performanta energetica Clasa A
- renovat integral: instalatii electrice si sanitare înlocuite
- contorizare individuală: apă, gaze şi lumina, cheltuieli minime la întreţinere
- incălzire apa caldă centralizata, însă apartamentul dispune de un boiler performant Ariston 80l cu finisaj elegant şi tehnologie de rezervor dublu; protectie ioni de argint şi rezervor emailat din titan
Avantaje bloc:
- imobilul solid, monolit proiectat să reziste la cutremure cu peste 8,5 grade pe scara Richter
- pereţi interiori din BCA sau beton (nu există gipscarton)
- locuri de parcare numeroase în zonă
- supraveghere video
Facilitati locatie: zona centrala cu conectivitate excelenta cu tot orasul
- acces rapid la mijloace de transport :metrou Piaţa Muncii la 5 minute si statia Pta Unirii la 7 minute
- restaurante de top, cafenele renumite, magazine, sali de fitness, saloane, farmacii, cabinete medicale
- magazine Mega Image şi Penny la doar 2-4 minute
- unitati educationale si de invatamant de stat si private: grădiniţe şi şcoli pe o rază de doar 7 minute; licee, universitati
- Mall Vitan la 7 min
Va invit sa programati o vizionare!
Alina Dinoiu
Pentru mai multe detalii, va invit aici: dinoiuimobiliare.ro