ID CP2759249

Vila Tunari I zona centrala I 5 camere

Această proprietate nu mai este activă,
te invităm să vizualizezi proprietăți similare

ID CP2759249

205,000 €

Casă / Vilă cu 5 camere de vânzare
Tunari
130 mp
2025

Va ofer spre vanzare vila cu 5 camere (living, 4 dormitoare, 3 bai), P+M+beci in Tunari, intr-zona centrala (intre sensul giratoriu cu Lidl si magazinul Penny), pe o strada foarte linistita, intr-o zona rezidentiala noua deosebita, locatie ideala pentru un stil de viață liniștit, relaxat si confortabil.

Disponibilitate imediata! Se vinde la "alb" (inclus panouri solare de 8 kW; pompa de caldura, incalzirea in pardoseala, tamplarie Salamander cu geam tripan)! Toate utilitatile!

Pret vanzare stadiu actual: 205.000 euro - pret final

Pret de vanzare "la cheie": 238.000 euro

Vila este construita pe P+M+beci, pe un teren de 300 mp, cu suprafata utila de 181 mp, cu o compartimentare eficienta si inteligenta a spatiilor, dupa cum urmeaza:

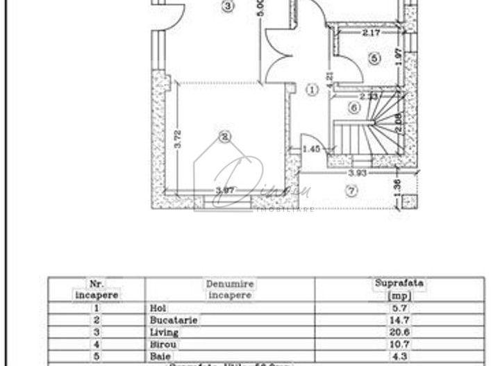
PARTER: zona de zi cu suprafata utila totala de 66 mp

- hol intrare de 5,7 mp plus spatiu depozitare sub scara

- living spatios si luminos de 35 mp

- bucataria ideschisa - se poate inchide

- dormitor/birou de 11 mp

- baie de 4,3 mp, cu fereastra - ideal pentru aerisire naturala

- terasa de 5 mp

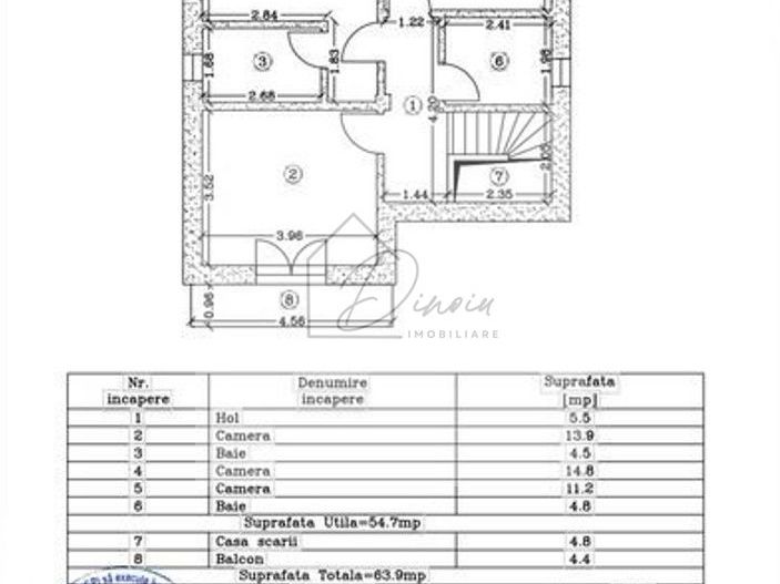
ETAJ: zona de noapte, cu suprafata utila totala de 64 mp

- hol de 5,5 mp

- dormitor matrimonial de 15 mp cu baie proprie de 4,5 mp (cu fereastra - ideal pentru aerisire naturala)

- 2 dormitoare de 14 mp si 11,2 m

- baie spatioasa de 5 mp, cu fereastra - ideal pentru aerisire naturala

- balcon de 4,4 mp

Beci: 5 mp

Parcare: 2 locuri

Utilitati: apa - put propriu adancime 20m; curent trifazat; fosa ecologica cu drenaj

Dotari si finisaje: premium

- eficienta energetica maxima: incalzire prin pardoseala, pompa de caldura, panouri solare

- termoizolatie de 15cm

- tamplarie Salamander cu geam tripan

- constructie din caramida: exterior de 30cm si interior de 15cm

- acoperis tabla Bilka 0,5

- camere foarte spatioase si foarte luminoase

Facilitati locatie:

- locatie centrala, aproape de gradinita, scoala, parc, primarie, politie, stadion, etc

- la 5 min de Pipera, 15 min aeroport Otopeni Henri Coanda, 10 min Baneasa Shopping City

- mijloace de trnsport STV: 449 si 459, care fac legatura cu metroul

- magazine: Penny si lidl

- parc central Tunari cu loc de joaca pentru copii si terenuri de fotbal si de tenis

- unitati de invatamant si educative: gradinita, scoala gimnaziala

- facilitati sportive: teren fotbal, tenis, etc

Va invit sa programati o vizionare!

Alina Dinoiu

Pentru mai multe detalii, va invit aici: dinoiuimobiliare.ro

Citește mai mult

  • Număr camere
    5
  • Dormitoare
    4
  • Număr bucătării
    1
  • Număr băi
    3
  • Geam la baie
    Da
  • Număr balcoane
    1
  • Număr terase
    1
  • Număr locuri parcare
    2
  • Disponibilitate
    Imediat
  • Tip casă
    Individual
  • Stare interior
    Ultrafinisat
  • Suprafață utilă
    130 mp
  • Suprafață construită
    170 mp
  • Suprafață teren
    300 mp
  • Acoperiș
    Tablă
  • Stadiu construcție
    Finalizată
  • An construcție
    2025
  • Construcție nouă
    Da
  • Tip construcție
    Cărămidă
  • Număr subsoluri
    1

Facilități

Acoperiș
Apă
Apometre
Bucătărie deschisă
Contor căldură
Contor electric
Contor gaz
Curent
Curent trifazic (380V)
Curte
Debara
Ferestre PVC
Fosă septică
Geamuri cu izolație fonică
Geamuri tripan
Grădină proprie
Iluminat stradal
Încălzire prin pardoseală
Izolație exterioară
Izolație interioară
Mijloace de transport în comun
Nemobilat
Panouri solare
Pompă de căldură
Străzi asfaltate
Ușă intrare metal
Vopsea lavabilă
WC Serviciu
Necesare:

Site-ul nu poate funcționa corect fără aceste cookie-uri. Vezi cookie-urile

Statistică:

Strângem statistici anonime despre voi, vizitatorii unici, pentru a vă îmbunătăți experiența dumneavoastră. Vezi cookie-urile

Marketing:

Pentru a ne promova mai eficient serviciile noastre, folosim cookies pentru a vă identifica și a vă oferi proprietăți și servicii personalizate. Vezi cookie-urile

Acest site folosește cookies, află detalii. Alege ce tipuri de cookies dorești să permitem: